Regional Biosolids Management Study: Lee County Utilities
In rapidly urbanizing areas, loss of agricultural land and increased constraints on local land use are placing increased pressure on biosolids generators to pursue innovative residuals management practices. Lee County Utilities retained Hazen and Sawyer to prepare a Regional Biosolids Management Plan to aid in developing a long term vision for handling wastewater treatment residuals and producing a Class A residuals product.
Lee County, Florida, is a coastal county on the southwest side of Florida just above the Naples area. Urban development in surrounding communities such as Cape Coral and Ft. Myers, has seen tremendous and ever increasing growth over the last decade. Local wastewater utilities had historically been disposing of domestic waste biosolids by land application of Class B biosolids; however, by 2005, suitable land application sites were no longer available within the county limits and sites in more inland, rural counties began to be used as urbanization increased in Lee County.

Mike Bullard is experienced in the design, operation, maintenance and process optimization of municipal and industrial water and wastewater treatment facilities.
Related Topics:


Most Florida public utilities dispose of Class B biosolids through various land application methods permitted under current FDEP regulations. However, it is likely that both permitting and disposal of Class B residuals by land application will become more difficult in the future due to completing demands of urbanization and increased local regulation. There have been statements made by government officials, most notably from former Governor Bush, who called for the end of land application of Class B biosolids by 2011. This may lead state regulators to seek to further restrict, if not end, land application disposal of Class B biosolids in the near future, particularly in ecologically sensitive areas such as Lee County. Some Florida counties in Lee County’s region have already banned, or severely restricted, biosolids land application activities within their jurisdictions.
As early as 2004, the then Director of Lee County Utilities could see the trend toward more restrictions on biosolids management which created a need to study and develop alternate disposal methods. Based on these trends Lee County Utilities, in a proactive response to the potential loss or severe restrictions on Class B land application residuals disposal activities, initiated an investigation into the feasibility of constructing and operating an alternate biosolids management facility capable of producing a Class A quality product.


The investigation developed the following information for planning a regional Class A biosolids management program:
- Projected biosolids generation rates from wastewater treatment facilities currently operated by Lee County Utilities, facilities located within Lee County but operated by others, and select facilities located outside of Lee County.
- Assessment of local, state and federal regulations currently governing the treatment and disposal of wastewater treatment residuals.
- Assessment of thermal drying and alkaline stabilization technologies which could be utilized to produce a Class A residuals product.
- Assessment of potential Class A product end uses and markets.
- Assessment of potential sites within Lee County for a Class A regional residuals management facility.
- Cost comparison among selected alternatives as compared to costs associated with continued disposal under the current Class B land application program.
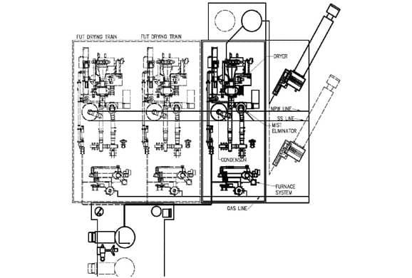
As a result of these assessments a comprehensive biosolids management strategy was developed that provided for Lee County Utilities needs; but also provided a foundation upon which other utilities in the region could be incorporated as participant agencies into a larger residuals management entity. Several options were investigated and a multi-train thermal drying system which could be constructed in modules was selected.
Numerous sites were investigated and a preliminary site adjacent to an existing Lee County Waste-to-Energy facility was selected as a site for the thermal drying facility. Energy availability and sustainability considerations were primary factors in the decision to co-locate the facility adjacent to the existing plant which could provide a heat energy source derived from a municipal waste stream rather than fossil fuels (e.g., fuel oil or natural gas).

Project Outcomes and Benefits
- Produced assessment of thermal drying and alkaline stabilization technologies which could be utilized to produce a Class A residuals product.
- Assessed potential Class A product end uses and markets.
- Assessed potential sites within Lee County for a Class A regional residuals management facility.